Ausschreibungen

Stellenausschreibung Mitarbeiter Bauhof/Hausmeister
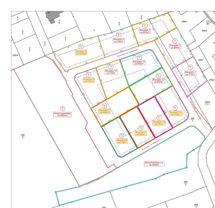
Ausschreibung Verkauf von gemeindeeigenen Baugrundstücken

Informationen zu der Ausschreibung der Baugrundstücke finden Sie hier  ...........

 

Zweite Ausschreibung Baugrundstück, Pulsnitzer Str. 25, 01920 Steina

Ausschreibung

Ausschreibungen für Bauleistungen, Liefer- und Dienstleistungen

Die Ausschreibungen finden Sie auf der Vergabeplattform evergabe.de.

Bekanntmachungen gem. § 20 (3) und (4) VOB/A sind auf der Homepage der Stadt Pulsnitz unter Aktuelles/ Ausschreibungen zu finden.

öffentliche Ausschreibung Freianlagen Kitaneubau

öffentliche Ausschreibung Holzbauarbeiten Freianlage Kitaneubau